Jarrahdale

Custom Farmhouse - complete

4 bedrooms, 2.5 bathrooms + theatre + games room + Studio.

Nestled 45 kilometres southeast of Perth, amidst the serene Darling Range, a remarkable custom farmhouse is taking shape in the heart of Jarrahdale.

Drawing upon the timeless allure of traditional farmhouse aesthetics and infusing them with a touch of modern or industrial flair, this home offers a harmonious fusion of sophistication and comfort.

 

 

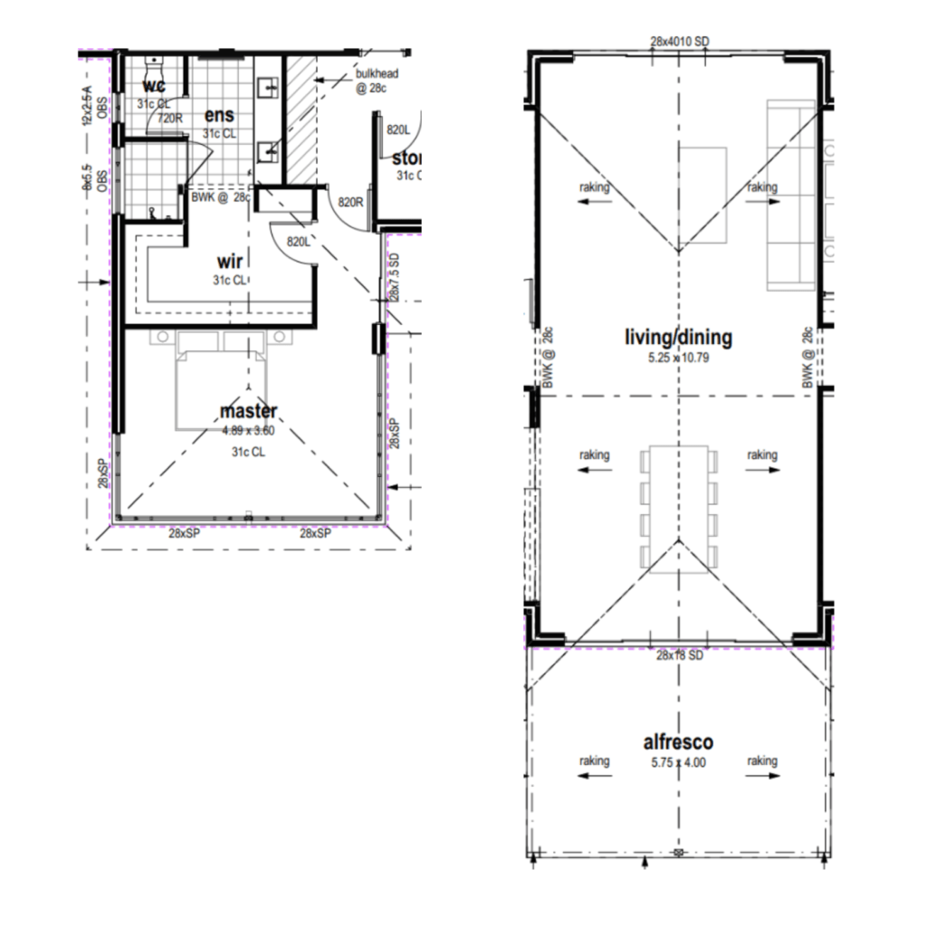
Designed to capitalise on breathtaking views and harness abundant natural light, this home promises to be a rural retreat like no other.

 

At its core, a spacious free-form living and kitchen area has been thoughtfully crafted to allow views from both sides of the home, enhanced by expansive windows that stretch to the apex of the raking ceiling. 

 

Design features abound, including exposed bricks, floor-to-ceiling double-glazed windows and doors, polished concrete floors, and raking ceilings.

Designed to capitalise on breathtaking views and harness abundant natural light, this home promises to be a rural retreat like no other.

 

At its core, a spacious free-form living and kitchen area has been thoughtfully crafted to allow views from both sides of the home, enhanced by expansive windows that stretch to the apex of the raking ceiling.

 

Design features abound, including exposed bricks, floor-to-ceiling double-glazed windows and doors, polished concrete floors, and raking ceilings.

PROGRESS PICS

Custom Farmhouse - under contruction

Speak to the team about Designing a custom home

send us a message